- São Paulo, SP
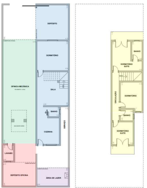
- 284,82 m2
Jardim das Figueiras II, Rua Marcel de Oliveira, nº 105
Aquele que tentar fraudar a arrematação, além da reparação do dano na esfera cível - arts. 186 e 927 do Código Civil - ficará sujeito as penalidades do artigo 358 do Código Penal: Art. 358 - Impedir, perturbar ou fraudar arrematação judicial; afastar ou procurar afastar concorrente ou licitante, por meio de violência, grave ameaça, fraude ou oferecimento de vantagem: Pena - detenção, de 2 (dois) meses a 1 (um) ano, ou multa, além da pena correspondente à violência.
Matrícula Nº: 124.045, do CRI de Sumaré/SP.
Contribuinte Nº: 01.03.031.0124.001.
Débitos da ação: R$634.182,37 (seiscentos e trinta e quatro mil, cento e oitenta e dois reais e trinta e sete centavos) abril 2025.
Débitos Pendentes: Eventuais débitos não localizados. Necessária a intimação do órgão competente para que informe se o bem penhorado possui débitos de IPTU em aberto e/ou inscritos em dívida ativa.
Ônus: Foram penhorados os direitos que os executados possuem sobre o bem imóvel em razão do instrumento particular de compra e venda de fls. 35/42, figurando como vendedor a parte exequente.
1.Os valores de proposta ou lance vencedor, ficará sujeito a reajuste no auto de arrematação de acordo com a atualização da tabela do Tribunal de Justiça de São Paulo no encerramento do leilão, para que o preço não seja considerado vil. (art. 891 CPC).
2.Eventual necessidade de regularização documental/construção junto aos órgãos competentes será de responsabilidade do Arrematante.
3. A descrição comercial do lote não se confunde com a descrição técnica do edital. Em caso de divergência, prevalecerá o descrito e publicado em edital.
4. Eventuais Débitos de IPTU/ITR que recaiam sobre o Imóvel serão atualizados e quitados com o produto da venda, mediante solicitação expressa do Arrematante ao MM Juízo da Causa.
5.Cabe ao interessado pesquisar e confirmar diretamente nos órgãos competentes.
6. Nos leilões, o procedimento do pós arrematação, deve ser realizado pelo arrematante junto ao seu procurador/advogado, diretamente nos autos do processo, uma vez que o Leiloeiro é auxiliar da justiça e está impedido de atuar nessa esfera devido ao conflito de interesses a ser gerado.
7. Caso haja lance à vista, o sistema não aceitará lance posterior na modalidade parcelada.
Formas e condições de pagamento: Consulte o Edital.
Aquele que tentar fraudar a arrematação, além da reparação do dano na esfera cível - arts. 186 e 927 do Código Civil - ficará sujeito as penalidades do artigo 358 do Código Penal: Art. 358 - Impedir, perturbar ou fraudar arrematação judicial; afastar ou procurar afastar concorrente ou licitante, por meio de violência, grave ameaça, fraude ou oferecimento de vantagem: Pena - detenção, de 2 (dois) meses a 1 (um) ano, ou multa, além da pena correspondente à violência.

Nenhum lance até o momento.
Nenhum lance até o momento.
Não possui uma conta? Cadastre-se